發布時間:2022-11-25 12:26:09 作 者:大漢機械
垂直螺旋輸送機是一種采用緊湊設計提升散裝物料,它是在一個完全封閉的殼體內利用旋轉軸來實現這一點,該螺旋軸可以始終如一地向上移動產品。下面將為大家介紹垂直螺旋輸送機的優勢。
它可以以指定的速率將產品從料斗或料箱中取出到工藝流中,確保自動化、的產品部分。
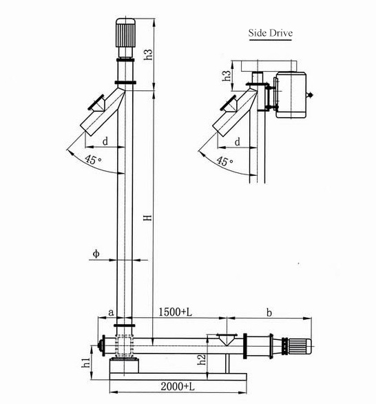
垂直螺旋輸送機由水平進料螺旋和垂直螺旋組成,從料倉或料斗或從上游進料裝置進料,保證進料有足夠的倉壓,確保物料能順利地向上輸送,垂直提升高度可達8米。
設計緊湊,因此不會占用大量地面空間,輸送機適用于大多數工廠布局。
螺旋輸送機是完全封閉的,確保沒有產品溢出和浪費,減少粉塵污染,這也可以確保沒有污染影響您的員工,從而降低相關的成本。
垂直螺旋組件包括安裝在筒倉或料斗下方的水平螺旋喂料器,該立式機器由與進給速率和速度同步的水平進給螺桿進給,螺旋輸送機驅動器驅動進給螺桿和垂直螺桿。
您可以用它向任何方向卸料,因此,物料可以通過垂直螺旋中類似于水平輸送機上的開口卸料,在某些情況下,通過將排料口連接到彎頭或通過其他類型的排料,可以將物料轉移到后續輸送機或工藝中。
以上是垂直螺旋輸送機的6大優勢,對于廢水設施、木材生產、化學和食品以及采礦作業而言,垂直螺旋輸送機具有很高的成本效益,它處理干燥和半流體材料,同時控制緩慢和自由流動的材料,降低成本。
上一篇:鏈板輸送機多少錢一臺(附價格表)
下一篇:沒有了
Copyright ? 2008-2019螺旋輸送機廠家-新鄉市大漢振動機械有限公司 All Rights Reserved 版權所有
網站備案號:豫ICP備09002479號-47